わかりやすい、伝わりやすい、というのは大事なことです。リブウェルリフォームでは、1級建築士・宅地建物取引業免許をはじめとした様々な免許・資格を取得しています。 下記の豊富な資格を所有していることで、自信を持ってお客様に安心・安全なリフォームをご提供することが可能になるのです。
【所有免許・資格一覧】
・2級建築士
・福祉住環境コーディネーター
・宅地建物取引士 ※
・インテリアコーディネーター
・リビングスタイリスト2級
・リフォームスタイリスト
・耐震診断士
※宅地建物取引業に関しては、グループ会社にて対応させていただきます。
スタッフひとりひとりがプロであることはもちろんですが、会社自体も様々な許可を取得しています。 これらの豊富な資格を所有していることで、自信を持ってお客様に安心・安全なリフォームをご提供することが可能なのです。
【所属・登録】
・建設業許可番号:
大阪府知事(般-28) 第126321号
・TOTO「リモデルクラブ」
・クリナップ「水まわり工房」
・LIXIL「リフォームネット」
・TOCLAS「トクラスリフォームクラブ」
・TOTOリモデルローン取扱店
・関西電力はぴeリフォームローン取扱店
・ジャックスリフォームローン
・LIXIL リフォームコンタクトリフォームローン(セディナ)
・AIU 事業総合賠償責任保険 建設業特約
・AIU 業務災害総合保険 ハイパー任意労災
・住宅性能保証制度登録事業者
(財団法人住宅保証機構 まもりすまい)
・リフォーム瑕疵保険登録業者
(ハウスプラス住宅保証株式会社)
いざリフォームをしようと思っても、「本当に理想の家ができるのかな?」「納得できる家造りをしてくれるんだろうか?」と不安がよぎるもの。 「リブウェルリフォームでは、CGパース・イメージ写真などでどんな風に仕上がるのかを事前にお見せしています。そして、ご納得いただけるまで、お客様の理想を一緒に探し出します。
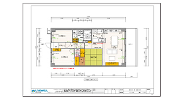
特に大きな工事になればなるほど、専門の知識と経験が必要になってきます。実際に下のような図面も、天井や壁、床に隠れた構造体の専門知識がないと書くことすらできません。 具体的には、以下のようなご提案を行っております。お客様の「想いをカタチに」ことを目的に、視覚でみてすぐにわかるようなご提案資料にまとめます。
何坪あるとか平米などの言葉でなく、間取図を中心に 見てわかりやすいカタチでのご提案を心がけております。
戸建ではなくマンションでも目的は同じです。一級設計士やインテリアコーディネーターの出番です。
図面を元にどのような配置にするのか。ご家族ごとに想いは全く異なるのでまずはヒアリングから。
ご家族みなさまでご覧になる提案資料。表紙に関してもこだわり伝わりやすいことを心がけています。
内容に関しても提案資料は複数枚から数十枚になる場合も。リブウェルからの想いを乗せて表現しています。
リブウェルリフォームは長期優良住宅化リフォーム推進事業に採択されました。長期優良住宅化リフォームインスペクション(住宅診断)では、建物に精通したホームインスペクター(建築士)が、ご希望の住戸を調べ、客観的かつ専門家の見地から、中古(既存)住宅の劣化状態をチェック。インスペクション結果を指定の「現況検査チェックシート」にまとめてお送りします。
「私たちは、「リフォームを契約する事」を目的とした会社ではありません。「リフォームしたお客様が笑顔になる事」を目的にしている会社です。 だからこそ、1級建築士や設計プランナーといった専門知識と資格と確かな経験をもったスタッフがお客様との対話の中で、「理想の住まい」を一緒に描いていきます。





